




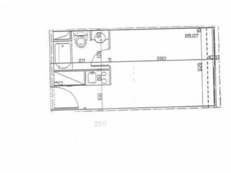
Pièces
1 pièce
Salles de bain
1
Surface
19 m²
Étage
5
Meublé
Oui
MOntpellier Richter, studio meublé de 19m² au cinquième étage d'une résidence sécurisée, avec gardien. Le logement dispose d'une kitchenette équipée, ouverte sur la pièce à vivre, d'une salle de bains avec wc. Le chauffage est électrique individuel. Proche de la faculté de sciences économiques et du MOMA. Lignes de tramway à 5 minutes à pied, arrêt PORT MARIANNE. Commerces à proximité. Possibilité de louer en plus un parking en sous-sol de la résidence (dans la limite des disponibilités). Zone soumise à encadrement des loyers - Loyer de référence 405EUR - loyer majoré 485EUR
Source
Logicimmo
Publié le
16 décembre 2025
Vue pour la dernière fois
Non disponible