




Pièces
3 pièces
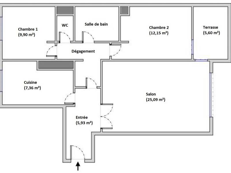
Chambres
2 chambres
Salles de bain
1
Surface
69 m²
Étage
4
Terrasse
Oui
Avenue de la Sibelle - Parc Montsouris Bel appartement 3 pièces de 69,53 m², traversant, avec terrasse de 5,60 m² et une cave, situé au 4e étage (avec ascenseur) d'un immeuble récent et parfaitement entretenu par gardien. Il se compose d'une entrée avec placard, un grand séjour de 25 m², une cuisine aménagée, 2 chambres, une salle de bain et des WC séparés. Eau chaude collective / Chauffage individuel électrique / Double vitrage / Excellente isolation / Fibre optique Garants ou assurance "GarantMe" nécessaire ! Disponible début février 2026 Contact :
Source
Logicimmo
Publié le
19 décembre 2025
Vue pour la dernière fois
il y a 19 heures