




Pièces
3 pièces
Chambres
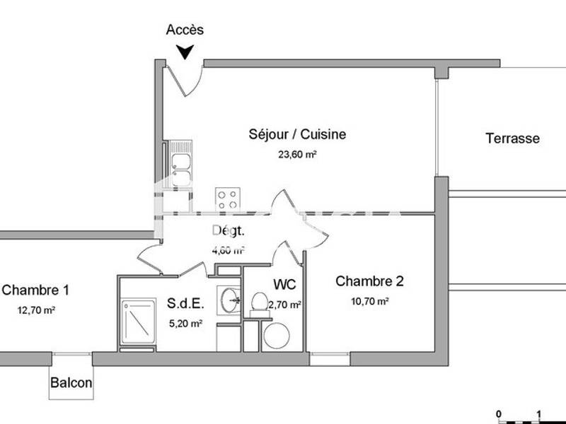
2 chambres
Surface
60 m²
Étage
2
Saint Martin, rue Han Coll, dans une résidence récente, sécurisée, proche de tous commerces, situé au 2 ème étage avec ascenseur, comprenant un séjour avec une cuisine aménagée et semi-équipée, deux chambres, une salle d'eau, une grande terrase, un parking. Assurance Multirisques Privilège *: 20.89 euros / mois *Services facultatifs, voir conditions en agences Les informations sur les risques auxquels ce bien est exposé sont disponibles sur le site Géorisques : georisques. gouv. fr
Source
Logicimmo
Publié le
20 décembre 2025
Vue pour la dernière fois
il y a 1 jour