




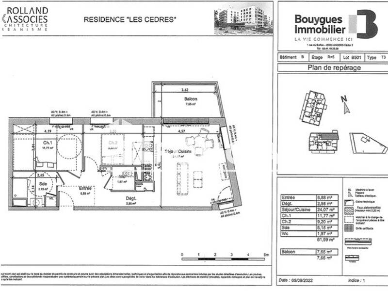
Pièces
3 pièces
Chambres
2 chambres
Surface
62 m²
Étage
5
Balcon
Oui
ANGERS - RUE DE LA CHALOUERE. Résidence neuve et sécurisée, appartement T3 au 5ème étage avec balcon et parking privatif comprenant : une entrée, un séjour-cuisine équipée (plaque, four, hotte et emplacement lave-vaisselle), une salle d'eau, WC séparés et deux chambres. Les informations sur les risques auxquels ce bien est exposé sont disponibles sur le site Géorisques : georisques. gouv. fr
Source
Logicimmo
Publié le
23 décembre 2025
Vue pour la dernière fois
il y a 1 jour