




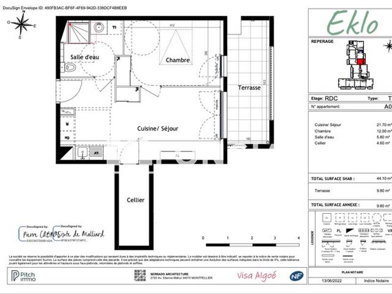
Pièces
2 pièces
Chambres
1 chambre
Surface
44 m²
Terrasse
Oui
PAS DE FRAIS D?AGENCE T2 Située dans le quartier de Nîmes Courbessac, découvrez notre nouvelle résidence qui propose des appartements modernes, lumineux et entièrement équipés. Profitez d'un cadre de vie agréable à proximité de toutes les commodités nécessaires.Appartements 2, 3 et 4 pièces disponiblesSurface de 39 à 112 m²Pièces spacieuses et bien agencéesCuisines aménagées et semi équipéesBalcon ou terrasse pour chaque logementChauffage individuel électrique / eau chaude collective gazPlaces de parking en sous-solAtouts de la résidence :AscenseurRésidence sécuriséeRésidence aux normes énergétiques et écologiques (RT 2012)Conditions de location :Loyer à partir de 514,00 euros / mois hors charge (selon appartement)Dépôt de garantie : 1 mois de loyerDisponibilité printemps 2025Pour plus d?informations ou pour planifier une visite, contactez-nous.Logement soumis à conditionsNe manquez pas cette occasion unique de vivre dans une résidence neuve et confortable ! Les informations sur les risques auxquels ce bien est exposé sont disponibles sur le site Géorisques : georisques. gouv. fr
Source
Logicimmo
Publié le
25 décembre 2025
Vue pour la dernière fois
il y a 1 jour