




Pièces
3 pièces
Chambres
2 chambres
Surface
50 m²
Étage
1
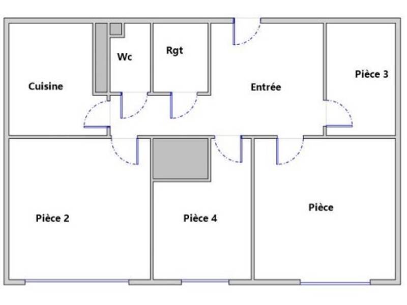
À proximité immédiate des métros Charonne et Faidherbe-Chaligny, au sein d'une résidence bien entretenue des années 1974 avec ascenseur, découvrez ce bien lumineux et ensoleillé actuellement aménagé en cabinet dentaire. Le bien peut accueillir une profession libérale (médicale, paramédicale, psychologue, orthophoniste, etc.) ou être réaménagé en appartement (possible configuration en 2 ou 3 pièces selon projet), Plans 3D en photos joint à l'annonce. Situé au 1er étage, il offre une surface fonctionnelle et modulable de 49,14m² carrez et se compose de : une entrée avec espace d'accueil / secrétariat, deux salles de consultation, une salle d'attente, une pièce de rangement, un débarras, des toilettes indépendantes, et un espace cuisine d'appoint. L'environnement est vivant et recherché, avec de nombreux commerces, écoles et transports à proximité immédiate. Chauffage collectif au gaz-- Climatisation Ascenseur-- Gardien Local sécurisé Cave. Possibilité d'acquérir un box en sus. Un bien rare dans le 11, idéal pour une installation professionnelle ou un investissement patrimonial avec potentiel de transformation. Les informations sur les risques auxquels ce bien est exposé sont disponibles sur le site Géorisques : &B Immobilier, enregistrée au RCS de Paris au numéro 882 014 889.
Source
Logicimmo
Publié le
2 janvier 2026
Vue pour la dernière fois
il y a 12 heures