




Pièces
6 pièces
Chambres
5 chambres
Salles de bain
3
Surface
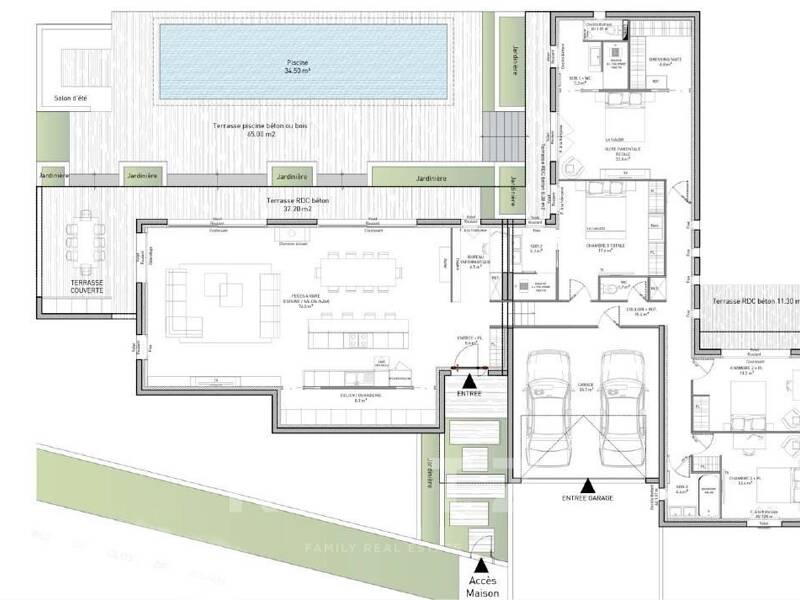
203 m²
Montpellier Plan des 4 Seigneurs - Villa d'architecte neuve (2026) de plain pied de 203m² sur un terrain de 1000m² environ. Bel espace de vie de près de 80m² donnant sur les terrasses et la piscine de 3.5x10m, suite parentale de 34m², 1 chambre avec salle de douche, 2 autres chambres,1 sdb, bureau, cellier/buanderie. Prestations et finitions haut de gamme. Un salon d'été et un garage double complètent ce bien. Environnement préservé, proche de toutes les commodités et à 300 m de la future ligne 5 du tram. Frais de notaire réduits.
Source
Logicimmo
Publié le
4 janvier 2026
Vue pour la dernière fois
Non disponible