




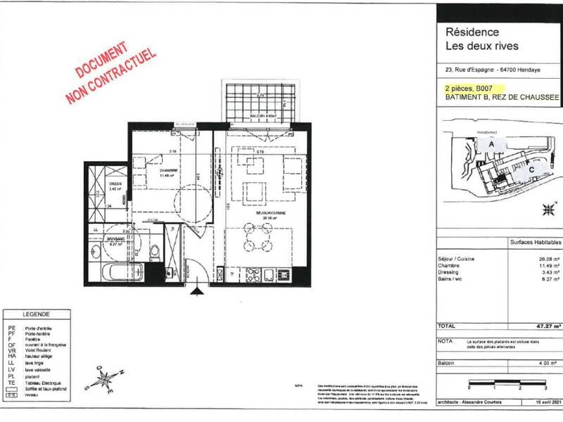
Pièces
2 pièces
Chambres
1 chambre
Salles de bain
1
Surface
47 m²
Balcon
Oui
SANS FRAIS D'AGENCE NI GARANT Situé dans une résidence neuve à Hendaye à proximité de la gare et de la frontière, appartement T2 de 47.38m2. Cet appartement est situé en rez-de-chaussée, il est composé comme suit : pièce de vie avec cuisine ouverte (équipée de meubles haut et bas et plan de travail) donnant sur un balcon, 1 chambre avec coin dressing , une salle de bains avec baignoire et WC et un dégagement avec placard de rangement. Chauffage individuel au gaz. Loyer 750.47 euros charges comprises (eau froide, une place de parking, entretien de la chaudière et les charges communes de la résidence) hors électricité et gaz.Etude du dossier soumise à conditions et plafonds de ressources.Les informations sur les risques auxquels ce bien est exposé sont disponibles sur le site GEORISQUES : "Pour plus de renseignements, nous contacter **Photos non contractuelles, servant à montrer les prestations identiques dans tous les logements.
Source
Logicimmo
Publié le
5 janvier 2026
Vue pour la dernière fois
il y a 3 jours