
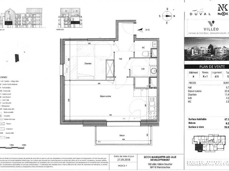
Pièces
2 pièces
Chambres
1 chambre
Salles de bain
1
Surface
47 m²
Étage
1
Crédit Agricole Immobilier vous propose un appartement T2 situé au 1er étage d'une résidence avec ascenseur comprenant une entrée, une cuisine équipée avec meubles, plaque vitro céramique, four intégré et hotte, et ouverte sur le séjour donnant sur le balcon, une chambre + placard, une salle d'eau. Une place de parking en sous-sol. Située à 6km de Lille centre, aux bords du Canal de Roubaix. Pour le quotidien, de nombreuses commodités sont rapidement accessibles à pied : arrêt de bus "Pont Blanc" à 100m ainsi que divers commerces et les écoles dans un rayon de 600m. Les gares de "Marquettes" et "La Madeleine" et l'accès à la rocade nord ouest se trouvent à 2km environ. Honoraires de location (TTC) à la charge du locataire pour la réalisation des services suivants : visites, constitution de dossier, frais de rédaction de bail, état des lieux. Dépôt de garantie, à verser par le locataire correspond à 1 mois de loyer HC. Nous consulter pour disponibilité. Les informations sur les risques auxquels ce bien est exposé sont disponibles sur le site Géorisques : georisques. gouv. fr
Source
Logicimmo
Publié le
5 janvier 2026
Vue pour la dernière fois
il y a 4 jours