




Pièces
2 pièces
Chambres
1 chambre
Surface
41 m²
Étage
2
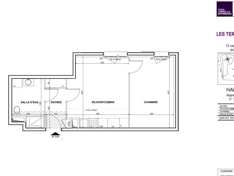
SANS HONORAIRES. Spacieux T2 50m² comprenant : Un séjour avec cuisine ouverte et aménagée, une chambre, une salle d'eau avec un W-C. L'appartement est doté du chauffage au gaz et collectif. Une place de stationnement est incluse. Première location au sein de la nouvelle résidence ' Attily', Proche commerces et transports. Référence à rappeler lors de nos échanges : 6831 - 327580 Les informations sur les risques auxquels ce bien est exposé sont disponibles sur le site Géorisques : LAC / Logement Abord.contract.
Source
Logicimmo
Publié le
6 janvier 2026
Vue pour la dernière fois
il y a 4 jours