



Pièces
1 pièce
Salles de bain
1
Surface
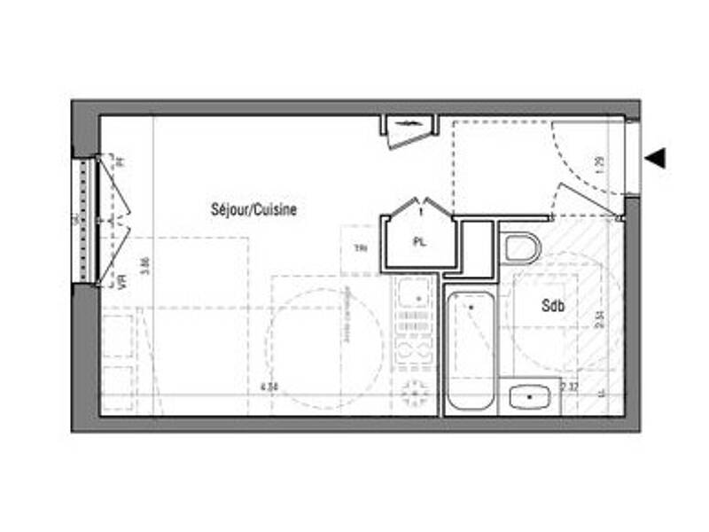
25 m²
Étage
5
Balcon
Oui
Studio avec balcon - VEFA - PTZ GLR Immobilier vous propose en exclusivité ce futur appartement 1 pièce de 25m², idéalement agencé, situé dans une résidence neuve de standing. Caractéristiques du bien : - Espace de vie lumineux avec cuisine ouverte - Salle de bain équipée - Balcon - Les photos sont non-contractuelles Pour plus d'informations, contactez-nous dès maintenant, Alexandre Grillault Laroche.
Source
Logicimmo
Publié le
7 janvier 2026
Vue pour la dernière fois
il y a 11 heures