




Pièces
4 pièces
Chambres
3 chambres
Salles de bain
1
Surface
106 m²
Terrasse
Oui
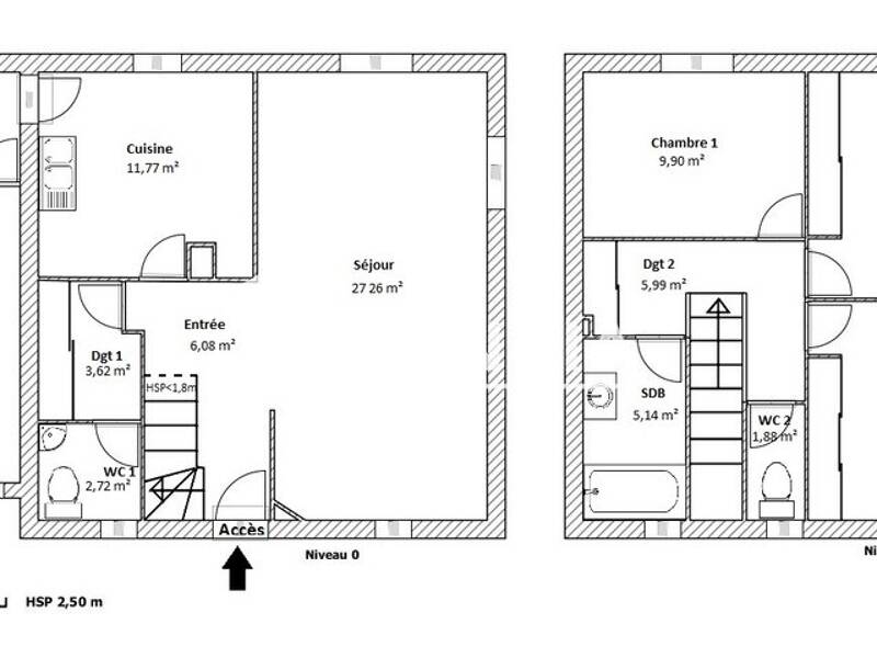
BOURGOIN JALLIEU , Proche autoroute, du quartier commerçant de CHAMPARET et du collège Pré-bénit, situé dans un petit lotissement calme, une maison T4 sur deux niveaux comprenant une entrée, cuisine aménagée, séjour, trois chambres, salle de bains, WC. Ce logement bénéficie de nombreux rangements, une terrasse, jardin, garage attenant.Le mode de chauffage est une chaudière gaz. Les informations sur les risques auxquels ce bien est exposé sont disponibles sur le site Géorisques : georisques. gouv. fr
Source
Logicimmo
Publié le
8 janvier 2026
Vue pour la dernière fois
il y a 4 jours