




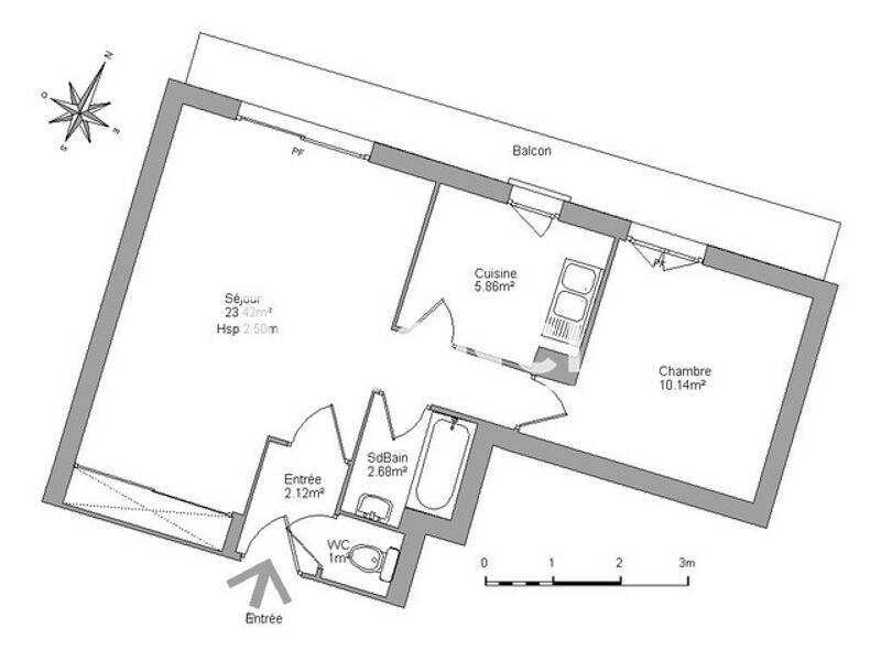
Pièces
2 pièces
Chambres
1 chambre
Salles de bain
1
Surface
45 m²
Étage
5
Balcon
Oui
Situé au 5 € étage d?une copropriété agréable avec ascenseur, cet appartement 2 pièces bénéficie d?un emplacement idéal à proximité immédiate des transports et commerces.Lumineux et bien agencé, il se compose d?une entrée, d?un séjour spacieux avec un grand rangement, d?une cuisine indépendante aménagée, d?une chambre, d?une salle de bains et de WC séparés.Le balcon, accessible depuis le salon et le balcon offre une belle vue dégagée.L'eau froide est inclus dans les provisions sur charges. Assurance Multirisques Privilège *: 13.16 euros / mois *Services facultatifs, voir conditions en agences Les informations sur les risques auxquels ce bien est exposé sont disponibles sur le site Géorisques : georisques. gouv. fr
Source
Logicimmo
Publié le
8 janvier 2026
Vue pour la dernière fois
il y a 15 heures