




Pièces
3 pièces
Chambres
2 chambres
Surface
70 m²
Terrasse
Oui
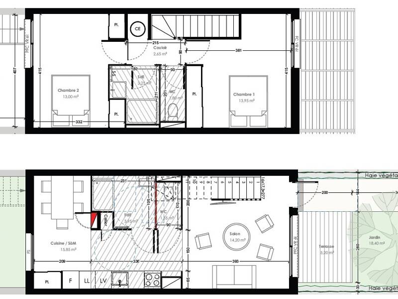
DOMAINE DE LA PINEDE Résidence neuve située au cœur d'un domaine arboré dans un quartier calme et résidentiel. Vous bénéficierez d'un accès rapide aux commerces, écoles (à 3 minutes à pied), et aux services de santé. Maison T3 neuve en duplex de 70,2 m² avec une terrasse de 5,2 m² ainsi que deux jardins de 10,95 m² et de 18,4 m². Elle se compose d'une entrée, d'une pièce de vie ouverte sur une cuisine aménagée, prolongée par l'extérieur, d'un cellier, d'une salle d'eau et d'un WC indépendant. A l'étage, vous profiterez de deux chambres, d'une salle d'eau et d'un WC séparés. Chauffage individuel électrique. Trois place de parking viennent compléter ce bien. - Photos non contractuelles. VALORITY ADB. Les informations sur les risques auxquels ce bien est exposé sont disponibles sur le site Géorisques :
Source
Logicimmo
Publié le
8 janvier 2026
Vue pour la dernière fois
il y a 1 heure