




Pièces
1 pièce
Surface
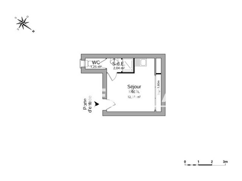
16 m²
Étage
4
PLACE DARCY / STUDIO au 4ème étage comprenant une pièce principale avec coin cuisine, une salle d?eau et un WC.Chauffage et eau chaude individuel électrique. Les informations sur les risques auxquels ce bien est exposé sont disponibles sur le site Géorisques : georisques. gouv. fr
Source
Logicimmo
Publié le
10 janvier 2026
Vue pour la dernière fois
il y a 1 jour