




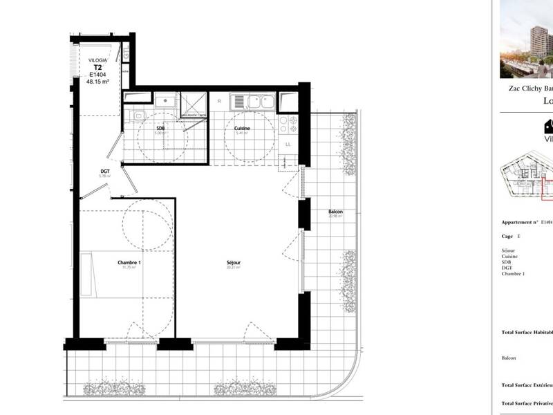
Pièces
2 pièces
Chambres
1 chambre
Surface
49 m²
Étage
14
Balcon
Oui
17 ème arrondissement PARIS - Rue Mstislav Rostropovitch A louer très beau T2 dès maintenant, au 14ème étage dans une résidence récente sécurisée. Le bien est composé : d'une entrée, un séjour avec une cuisine non équipée, 1 chambres, une salle d'eau avec wc. Ainsi qu'un grand balcon. Les provisions pour charges comprennent eau froide, eau chaude et chauffage collectifs au gaz et charges d'entretien générale. Soumis aux plafonds de ressources PINEL zone ABIS et revenus = 3X loyer CC Pour une mise en relation, indiquer obligatoirement la situation professionnelle, familiale et revenus actuels du foyer. Loyer appartement : 1322,46 € dont 161,34 € de provisions sur charges Dépôt de garantie : 1161,12 € Honoraires de gestion à charge du locataire : 367,58 €
Source
Logicimmo
Publié le
13 janvier 2026
Vue pour la dernière fois
il y a 1 jour