




Pièces
1 pièce
Salles de bain
1
Surface
19 m²
Étage
1
Meublé
Oui
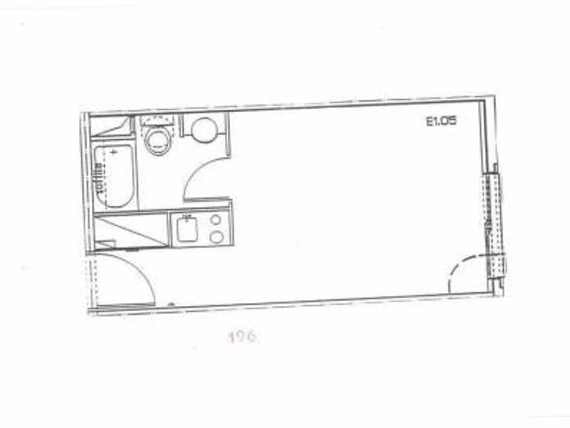
Montpellier, sur le site de Richter , Studio meublé de 19.20m² au premier étage d'une résidence sécurisée proche du MOMA. Ce logement entièrement meublé et équipé, dispose d'une salle de bains avec wc. Eau froide comprise dans les provisions pour charges. Chauffage électrique individuel. Lignes de tramway à 5 minutes à pied, arrêt PORT MARIANNE. Proche de tous commerces. Possibilité de louer en plus un parking en sous-sol de la résidence (dans la limite des disponibilités). Zone soumise à encadrement des loyers Loyer de référence: 405 EUR , Loyer de référence majoré : 485 EUR.
Source
Logicimmo
Publié le
14 janvier 2026
Vue pour la dernière fois
Non disponible