




Pièces
2 pièces
Chambres
1 chambre
Salles de bain
1
Surface
52 m²
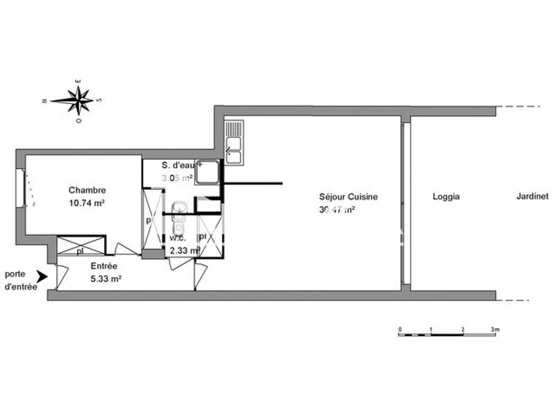
Découvrez ce bel appartement de type 2 (lot B303) alliant confort intérieur et espaces extérieurs privilégiés. L'espace de vie principal se compose d'un séjour avec cuisine ouverte donnant accès à une agréable loggia, extension naturelle de votre espace de vie.La partie nuit comprend une chambre confortable, complétée par une salle de bains fonctionnelle et des WC séparés. Le véritable atout de ce bien réside dans son jardin privatif, offrant un espace extérieur rare et précieux pour profiter des beaux jours en toute tranquillité.Ce T2 aux prestations soignées vous séduira par son agencement optimisé et ses espaces extérieurs qui apportent une réelle plus-value à votre quotidien. Assurance Multirisques Privilège *: 12.69 euros / mois *Services facultatifs, voir conditions en agences Les informations sur les risques auxquels ce bien est exposé sont disponibles sur le site Géorisques : georisques. gouv. fr
Source
Logicimmo
Publié le
15 janvier 2026
Vue pour la dernière fois
Non disponible