




Pièces
2 pièces
Chambres
1 chambre
Salles de bain
1
Surface
54 m²
Étage
3
Terrasse
Oui
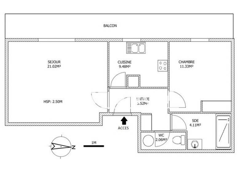
Secteur lille st maurice pellevoisin, à deux pas du métro et de tous commerces, dans résidence sécurisée, t2 comprenant entrée, séjour, cuisine, 1 chambre, salle de bains et wc ainsi qu'une terrasse. parking et cave inclus. Les informations sur les risques auxquels ce bien est exposé sont disponibles sur le site Géorisques : georisques. gouv. fr
Source
Logicimmo
Publié le
15 janvier 2026
Vue pour la dernière fois
Non disponible