



Pièces
4 pièces
Chambres
3 chambres
Salles de bain
1
Surface
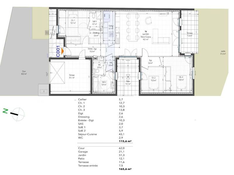
116 m²
Terrasse
Oui
// FRAIS DE NOTAIRE OFFERT// Située à seulement quelques minutes à pied du centre-ville de La Talaudière, vous bénéficierez d’un environnement résidentiel recherché, alliant calme et proximité immédiate des commodités. À l’abri de toute nuisance, découvrez cette Maison NEUVE de plain-pied de 116 m², à l’architecture contemporaine au sein d’une petite copropriété, offrant un cadre de vie paisible et privilégié. Baignée de lumière grâce à son orientation idéale, la maison profite d’un ensoleillement tout au long de la journée. Ses volumes généreux et parfaitement pensés offrent un confort de vie optimal, avec des espaces ouverts propices à la convivialité. Les prestations sont de très bon standing et entièrement personnalisables. Elle dispose d’un grand garage et d’une place de stationnement. La Talaudière, commune dynamique et conviviale aux portes de Saint-Étienne, séduit par la qualité de ses commerces de proximité, ses infrastructures scolaires et sportives, ainsi que par son excellente accessibilité grâce aux transports en commun et aux axes routiers majeurs. Un cadre de vie idéal pour concilier tranquillité et vie active. Un bien rare, alliant modernité, luminosité et emplacement de choix. A découvrir rapidement. Contacter votre conseiller Centralys Immobilier : Thierry STEFFAN
Source
Logicimmo
Publié le
16 janvier 2026
Vue pour la dernière fois
il y a 2 jours