




Pièces
3 pièces
Chambres
2 chambres
Salles de bain
1
Surface
61 m²
Étage
4
Terrasse
Oui
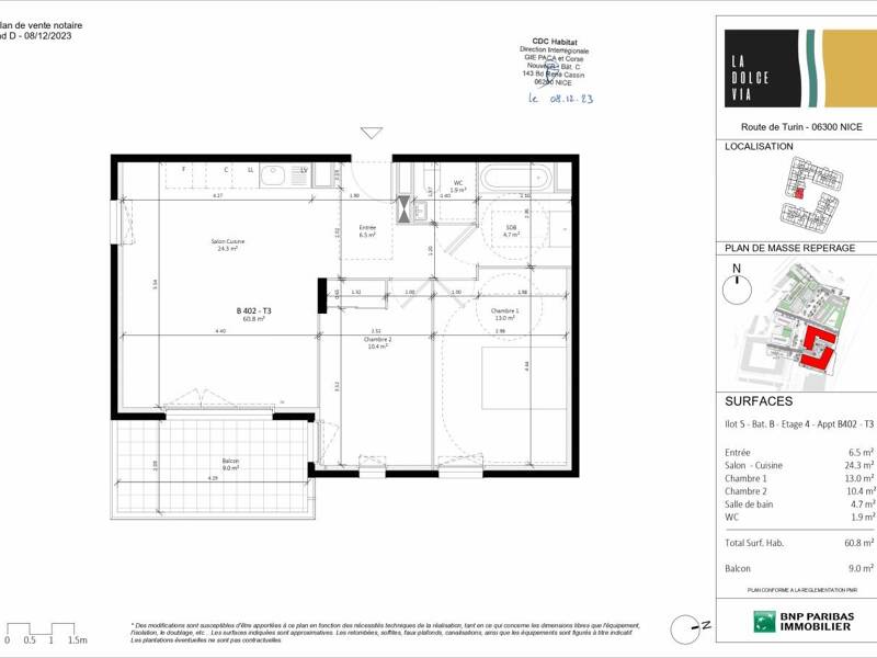
SANS HONORAIRES. Nice – T3 neuf - disponibilité mars sous réserve de l'achèvement des travaux Au cœur de la nouvelle résidence Dolce Via, découvrez ce bel appartement trois pièces de 61 m² situé au 4ème étage avec ascenseur. Il se compose d'séjour avec cuisine ouverte de 24,3 m² donnant directement sur la terrasse de 9m² ; de 2 chambres de 13 et 10,4 m² dont une avec un placard ; d'une salle de bain et d'un WC séparé. Une place de parking en sous-sol complète ce bien. La cuisine est aménagée et équipée d'une hotte intégrée, vous laissant la liberté d'ajouter vos propres appareils électroménagers. Les charges mensuelles incluent la production d'eau chaude, l'entretien des parties communes et la taxe d'enlèvement des ordures ménagères, avec régularisation annuelle. La résidence bénéficie d'un emplacement privilégié, proche des commodités, des transports et à quelques minutes du centre de Nice. La disponibilité est prévue en mars, sous réserve de l'achèvement des travaux. Référence : 381136 Référence à rappeler lors de nos échanges : B023 - 381136 Les informations sur les risques auxquels ce bien est exposé sont disponibles sur le site Géorisques : Logement Locatif Interm.
Source
Logicimmo
Publié le
19 janvier 2026
Vue pour la dernière fois
Non disponible