
Pièces
3 pièces
Surface
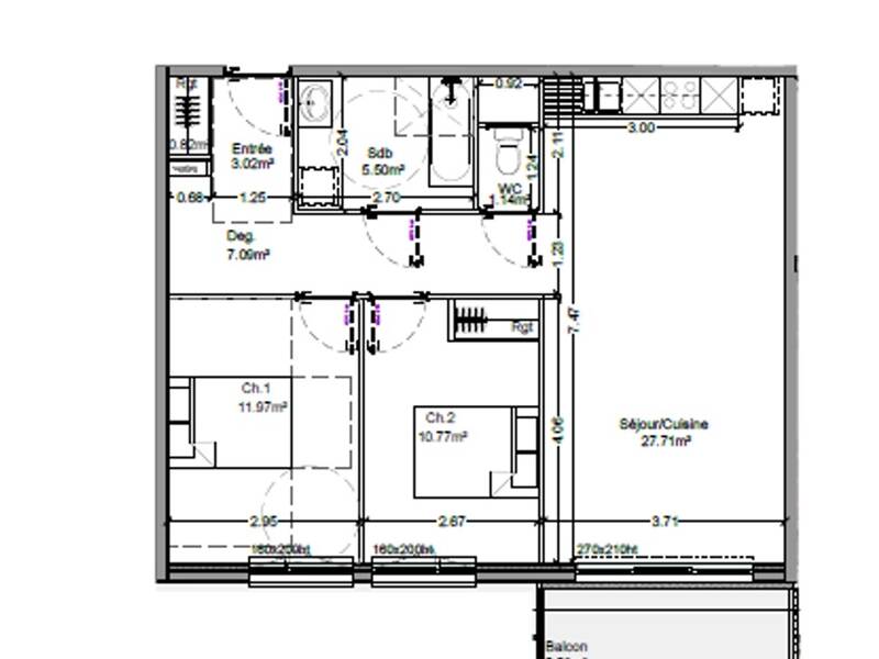
68 m²
LONGWY – T3 neuf de 68,02m ²– Résidence avec ascenseur (Rue du Colonel Merlin) DISPONIBLE A LA LIVRAISON – T1 2026 À 400m de la gare, proche des frontières belge et luxembourgeoise, T3 situé au RDC, visitable via logement témoin (T3) uniquement. Entrée spacieuse avec rangement, cuisine équipée (sans électroménager) ouverte sur séjour avec accès direct au balcon, deux chambres lumineuses dont l'une avec dressing, une salle de bain avec baignoire et WC séparés. Chauffage mixte : pompe à chaleur air/eau + chaudière gaz collective. Une place de stationnement privatif LOYER 35,00 euros CC P01 (parking PMR)
Source
Logicimmo
Publié le
20 janvier 2026
Vue pour la dernière fois
il y a 10 heures