



Pièces
2 pièces
Chambres
1 chambre
Salles de bain
1
Surface
40 m²
Étage
2
Balcon
Oui
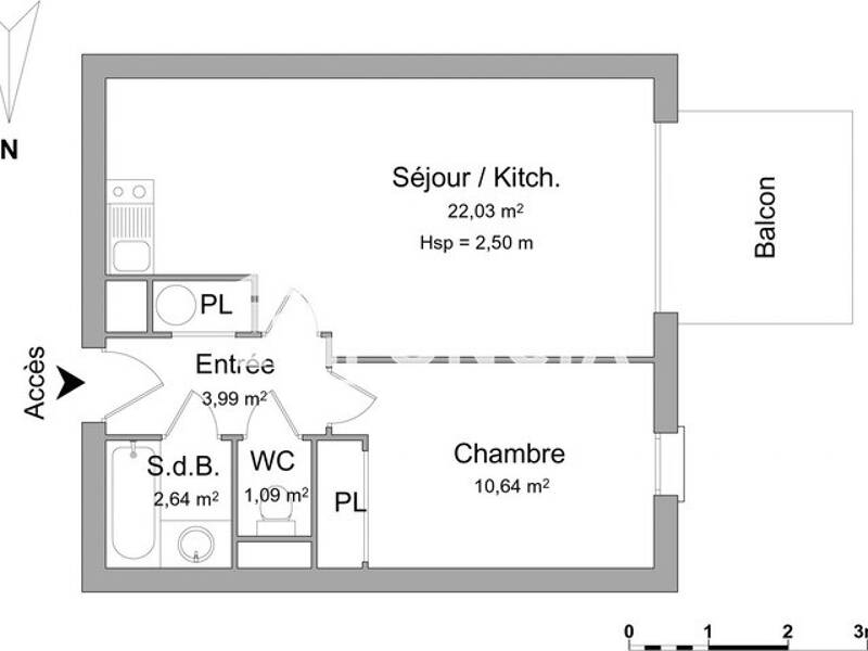
RESIDENCE BOIS DES GRAVES - Appartement comprenant une entrée avec placard, un séjour/cuisine donnant sur un balcon, une chambre avec un placard, une salle de bains, un wc séparé et un emplacement de parking. Chauffage individuel électrique Assurance Multirisques Privilège *: 12.69 euros / mois *Services facultatifs, voir conditions en agences Les informations sur les risques auxquels ce bien est exposé sont disponibles sur le site Géorisques : georisques. gouv. fr
Source
Logicimmo
Publié le
20 janvier 2026
Vue pour la dernière fois
il y a 2 jours