




Pièces
2 pièces
Chambres
1 chambre
Surface
76 m²
Étage
1
Terrasse
Oui
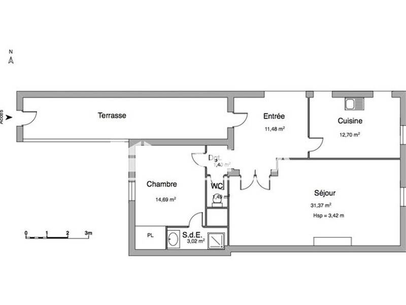
CENTRE HISTORIQUE DE MONTFERRANDNous vous proposons au sein d'un bel immeuble classé, un appartement avec du carcactère (parquet, hauteur sous-plafond) de type T2 de 77.71 m2 au 1er étage.Il se compose d'une entrée donnant sur un séjour, une cuisine séparée aménagée et équipée (plaque et hotte) suivie d'un dégagement donnant sur la chambre avec un placard intégré, une salle d'eau et un WC indépendant. Accès au logement par la terrasse. En complément : une cour commune au sein de l'immeuble.Le chauffage et la production d'eau chaude sont de type individuels électriques.Pour plus de flexibilité, le dépôt de garantie et les honoraires de location peuvent être réglés en 3 fois sans frais. *voir conditions en agence* Les informations sur les risques auxquels ce bien est exposé sont disponibles sur le site Géorisques : georisques. gouv. fr
Source
Logicimmo
Publié le
20 janvier 2026
Vue pour la dernière fois
il y a 21 heures