




Pièces
1 pièce
Surface
33 m²
Étage
4
Balcon
Oui
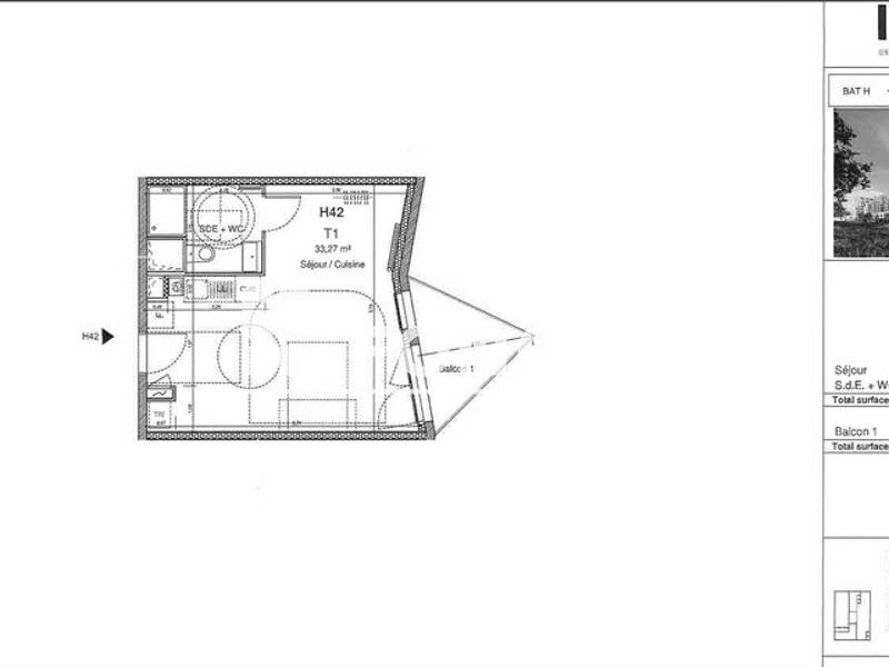
STUDIONous vous proposons un appartement proche de toutes les commodités de type T1 au 4ème étage avec ascenseur, d'une surface habitable de 33,27m2. Il se compose : d'une entrée avec placard donnant sur une cuisine aménagée et équipée, le séjour avec un balcon d'environ 5m2 et une salle d'eau avec WC. En complément : les lignes de bus et le TRAM.Le chauffage et la production d'eau chaude sont de type individuel GAZ.Pour plus de flexibilité, le dépôt de garantie et les honoraires de location peuvent être réglés en 3 fois sans frais. *voir conditions en agence* Les informations sur les risques auxquels ce bien est exposé sont disponibles sur le site Géorisques : georisques. gouv. fr
Source
Logicimmo
Publié le
21 janvier 2026
Vue pour la dernière fois
il y a 19 heures