
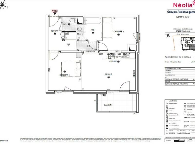
Pièces
3 pièces
Chambres
2 chambres
Salles de bain
1
Surface
57 m²
Étage
5
Balcon
Oui
PROGRAMME NEUF - LIVRAISON PREVUE AU 01/03/2026 Nous vous proposons la location de ce T3 de 57.35m2 situé au 5ème étage avec ascenseur au 263 Route de Schirmeck 67200 STRASBOURG. (secteur Montagne Verte) Il se compose d'une entrée/ séjour/cuisine de 27.60m2 avec cuisine ouverte meublée, 2 chambres, 1 sdb avec baignoire et WC séparé. 1 balcon de 6.50m2 complète ce bien. Production de chauffage : pompe à chaleur + plancher chauffant Possibilité de louer une place de parking en sous sol au tarif de 40.93 euros/mois. Pour plus de renseignements, nous vous invitons à nous contacter par mail. SANS FRAIS D'AGENCE ! REF;5906013
Source
Logicimmo
Publié le
21 janvier 2026
Vue pour la dernière fois
Non disponible