




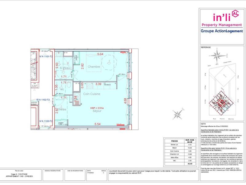
Pièces
2 pièces
Chambres
1 chambre
Surface
45 m²
Étage
11
.. EXCLUSIVITÉ Sans frais d'agence, direct bailleur In'li. À louer : nous vous présentons à PARIS (75018), cet appartement de 2 pièces de 45,4 m2. Son intérieur compte une pièce à vivre, une chambre, une cuisine ouverte, une salle d'eau et des toilettes. Cet appartement est équipé d'un chauffage individuel. L'immeuble compte un local poussettes et un local vélos. Cet appartement est situé au 11e étage d'un récent avec ascenseur. Pour votre véhicule, il est loué avec une place de parking.
Source
Logicimmo
Publié le
22 janvier 2026
Vue pour la dernière fois
il y a 5 heures