




Pièces
2 pièces
Chambres
1 chambre
Salles de bain
1
Surface
47 m²
Étage
3
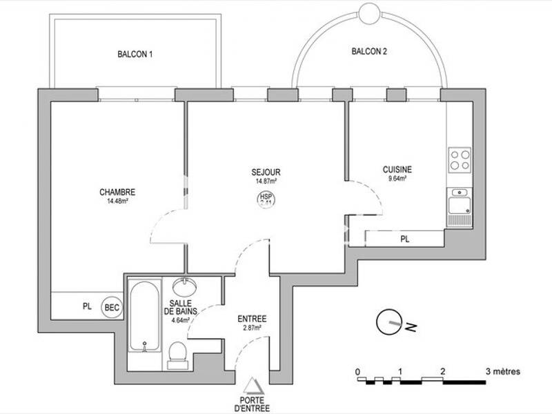
Appartement 2 pièces situé à la Robertsau, au calme, d?une surface de 47 m2 comprenant : une entrée, un séjour, une chambre, une cuisine, une salle de bain avec un WC. Un garage, un parking extérieur et une cave au sous-sol Assurance Multirisques Privilège *: 13.16 euros / mois *Services facultatifs, voir conditions en agences Les informations sur les risques auxquels ce bien est exposé sont disponibles sur le site Géorisques : georisques. gouv. fr
Source
Logicimmo
Publié le
22 janvier 2026
Vue pour la dernière fois
Non disponible