




Pièces
1 pièce
Surface
36 m²
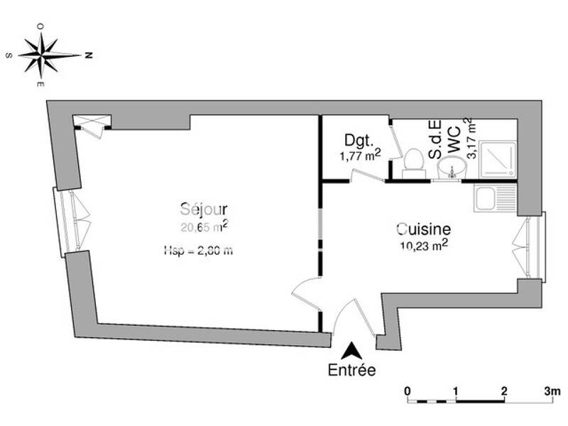
Situé en plein centre-ville d?Orléans, à proximité immédiate de l?ancien hôpital de la Madeleine, ce studio en rez-de-chaussée offre un cadre de vie pratique et agréable.L?appartement se compose d?une pièce principale de 20 m², d?une grande cuisine séparée de 10 m², d?une salle d?eau avec WC, ainsi que d?un espace de rangement appréciable.Le logement dispose d?un chauffage individuel électrique, permettant une gestion autonome de la consommation.Idéal pour un étudiant, un jeune actif ou toute personne recherchant un pied-à-terre fonctionnel, à deux pas des commerces, transports et commodités du centre-ville. Assurance Multirisques Privilège *: 11.27 euros / mois *Services facultatifs, voir conditions en agences Les informations sur les risques auxquels ce bien est exposé sont disponibles sur le site Géorisques : georisques. gouv. fr
Source
Logicimmo
Publié le
22 janvier 2026
Vue pour la dernière fois
il y a 1 jour