




Pièces
5 pièces
Chambres
4 chambres
Salles de bain
1
Surface
107 m²
Étage
2
Balcon
Oui
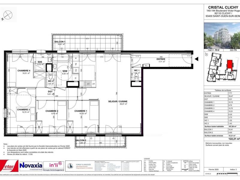
..Immeuble neuf direct bailleur inli , Cristal Clichy est une résidence innovante avec 175 m2d' espaces communs partagés : salle de sport, espace de convivialité, salle de télétravail, salle de jeux . Des Services pour faciliter votre vie : Assurance Multirisque habitation, casiers connectés pour recevoir ses colis à la maison tout est inclus dans le loyer .Les cuisines sont entièrement meublées et équipées , il y a des luminaires ainsi que des tringles à rideaux déjà posées dans l'appartement. Très bien situé au pied de l'immeuble la station Saint Ouen :Métro lignes 13 & 14 ainsi que le RER C à 300mLa livraison prévue AVRIL 2026 A louer, appartement 5 pièces de 107,02 m2 comprenant un séjour avec cuisine ouverte équipée de 39,47 m2 donnant sur deux balcons de 10,41 m2 et 4,80 m2, une chambre de 10,51 m2 avec salle d'eau, 3 chambres de 10,15 m2, 9,70 m2 et 12,72 m2, une salle de bains de 6,25 m2 et 2 WC séparés. Loué avec un emplacement de parking. NB : photos des logements non contractuelles, en illustration des prestations types.Réservation sur plan uniquement SANS VISITES.
Source
Logicimmo
Publié le
22 janvier 2026
Vue pour la dernière fois
il y a 4 jours