




Pièces
2 pièces
Chambres
1 chambre
Salles de bain
1
Surface
49 m²
Étage
2
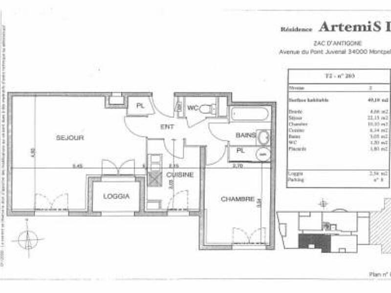
* Montpellier Rives du Lez, T2 de 49 m² en 2ème étage dans résidence sécurisée avec gardien. Le logement dispose d'une cuisine indépendante, d'un séjour de 22 m² avec loggia, d'une chambre avec placard équipé. Loué avec un parking sous-sol. Eau froide incluse dans les provisionspour charges. Chauffage électrique individuel. Lignes de tram à 300m à pied arrêt PLACE DE L'EUROPE. Zone soumise à encadrement des loyers: loyer de référence: - loyer majoré:
Source
Logicimmo
Publié le
23 janvier 2026
Vue pour la dernière fois
Non disponible