




Pièces
5 pièces
Chambres
4 chambres
Salles de bain
1
Surface
105 m²
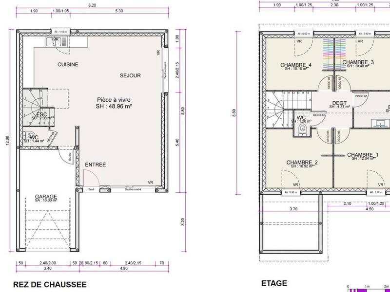
Vénissieux -Limite Saint-Fons : Idéalement situé, en retrait de la circulation et à deux pas du Tramway T4. DERNIÈRE MAISON DISPONIBLE Description du projet : Maison moderne de 91m²mitoyenne d'un coté , offrant TROIS chambres spacieuses et garage attenant de 16m2 Rez-de-chaussée : Un grand espace de vie ouvert de 45m², avec cuisine intégrée, et un WC séparé. À l'étage : trois chambres lumineuses, une salle de bain, et un second WC. Le tout sur une parcelle de terrain clos. Vous bénéficierez également de deux places de parking privatives. Personnalisation sur mesure : La maison peut être adaptée à vos envies , possibilité de faire 4 chambres pour une surface de 102m2 d'agrandir la surface de la maison, de créer une chambre au rez-de-chaussée, ou d'autres aménagements selon vos besoins. Ne manquez pas cette opportunité unique !
Source
Logicimmo
Publié le
23 janvier 2026
Vue pour la dernière fois
il y a 3 heures