




Pièces
3 pièces
Chambres
2 chambres
Salles de bain
1
Surface
74 m²
Étage
1
Terrasse
Oui
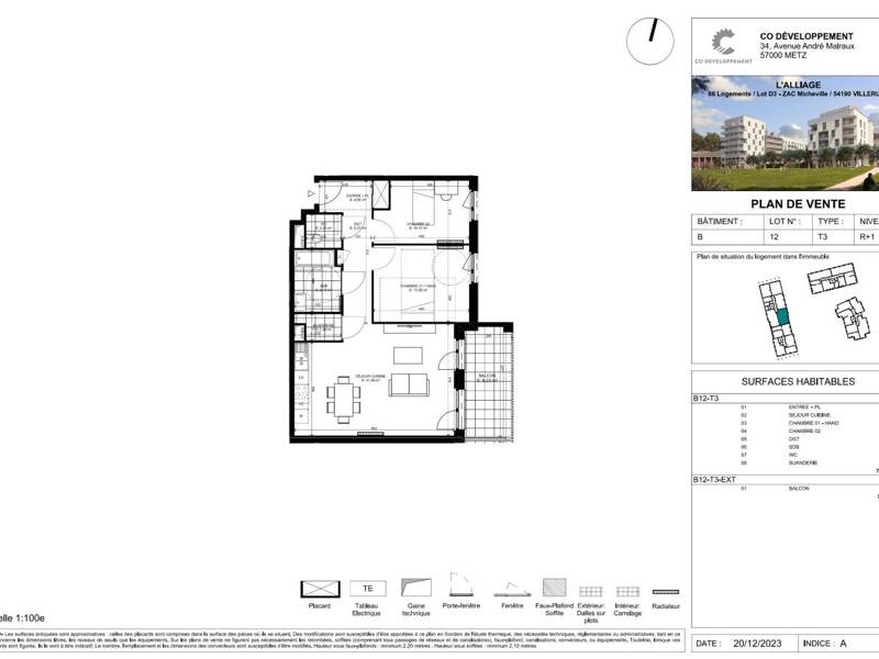
SANS HONORAIRES. A Villerupt, CDC Habitat vous propose de découvrir sa nouvelle résidence ! Vous serez séduit par son cadre de vie et sa proximité du centre-ville. Au 1er étage, laissez-vous séduire par ce bel appartement T3 d'une surface généreuse de 74m² ! Il vous offre une entrée avec placard aménagé, une jolie cuisine moderne meublée (non équipée) ouverte sur pièce de vie lumineuse avec baie vitrée sur un espace total de 31m², 2 chambres, une salle de bain avec baignoire, un wc séparé. Vous disposerez d'un rangement supplémentaire avec un cellier buanderie. Pour les beaux jours vous profiterez d'une terrasse de 9m² avec vue sur l'espace vert commun de la résidence. Pour votre confort, un stationnement privatif en sous-sol vient compléter ce bien. Chauffage collectif. Local vélos, ascenseur. Venez vite visiter notre appartement témoin ! Location sur plan. Plusieurs T3 disponibles. Sans plafond de ressources ! *photos non contractuelles Référence à rappeler lors de nos échanges : A484 - 379204 Les informations sur les risques auxquels ce bien est exposé sont disponibles sur le site Géorisques : LAC / Logement Abord.contract.
Source
Logicimmo
Publié le
23 janvier 2026
Vue pour la dernière fois
il y a 3 jours