




Pièces
3 pièces
Chambres
2 chambres
Salles de bain
1
Surface
74 m²
Étage
9
Terrasse
Oui
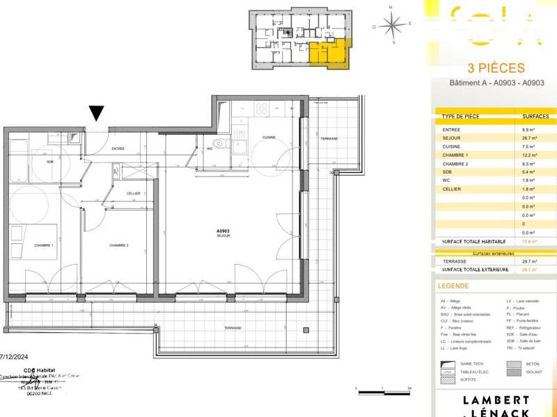
SANS HONORAIRES. NICE – Quartier JOIA MERIDIA Grand appartement 3 pièces – 74 m² – Terrasse 30 m² – Parking en sous-sol Rare sur le marché ! Situé au 47 Rue Emmanuel Grout, cet appartement de 3 pièces de 74 m², au 9 € étage d'une résidence neuve de 15 niveaux, offre un cadre de vie moderne et lumineux. Il comprend une entrée avec un placard aménagé, un séjour-cuisine de '4,2 m² prolongé par une terrasse d'angle de 30 m² exposée Sud-Est, deux chambres de 12,2 m² et 9,3 m², d'une salle de bain avec sèche-serviette, d'un cellier, WC séparé et une place de parking en sous-sol. Les charges incluent le chauffage, la production d'eau chaude, l'entretien des parties communes et la taxe d'enlèvement des ordures ménagères. La cuisine est aménagée avec hotte intégrée, prête à accueillir votre électroménager Disponible mars 2026, sous réserve de l'achèvement des travaux. Référence annonce : 365813 Référence à rappeler lors de nos échanges : B225 - 365813 Les informations sur les risques auxquels ce bien est exposé sont disponibles sur le site Géorisques : Logement Locatif Interm.
Source
Logicimmo
Publié le
24 janvier 2026
Vue pour la dernière fois
Non disponible