




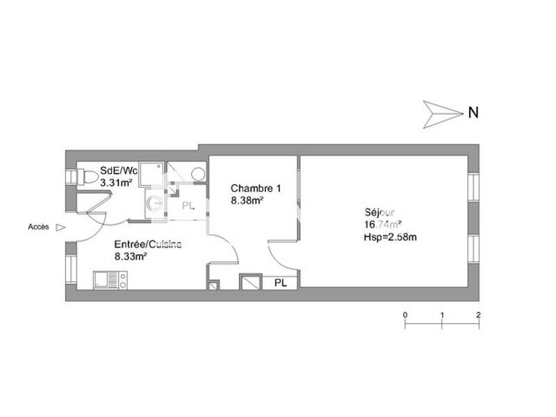
Pièces
2 pièces
Chambres
1 chambre
Surface
37 m²
Étage
1
emplacement premium au pied de la cathédrale appartement de deux pièces avec pièce de vie, chambre, cuisine ouverte, salle de douche avec wc, vue sur cathédrale pour ce petit nid Assurance Multirisques Privilège *: 13.16 euros / mois *Services facultatifs, voir conditions en agences Les informations sur les risques auxquels ce bien est exposé sont disponibles sur le site Géorisques : georisques. gouv. fr
Source
Logicimmo
Publié le
25 janvier 2026
Vue pour la dernière fois
Non disponible