



Pièces
2 pièces
Salles de bain
1
Surface
43 m²
Étage
2
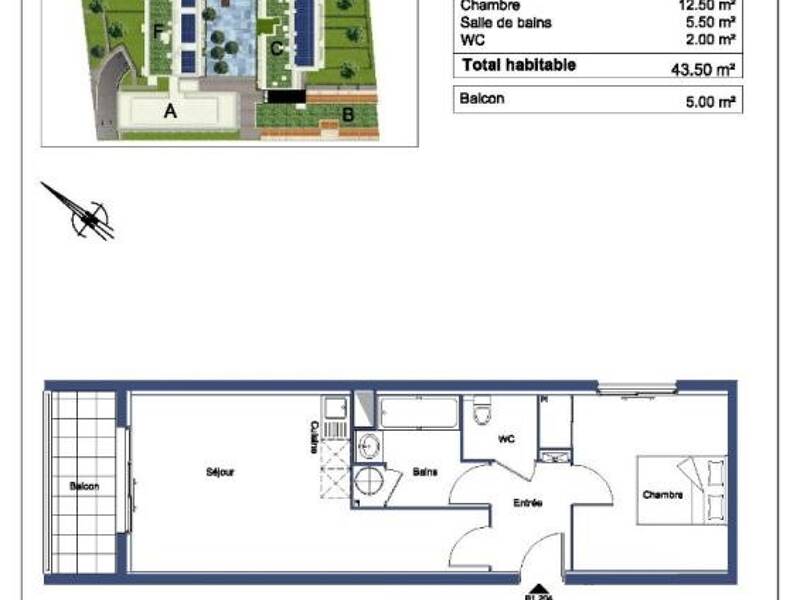
BORDEAUX - Dans résidence située à deux pas du quartier des Chartrons, proche de toutes commodités. Appartement de type 2 composé de : entrée, séjour, cuisine aménagée, chambres avec placard, salle de bain, WC. Balcon, parking. Zone soumise à encadrement de loyers. Loyer de référence majoré (loyer de base à ne pas dépasser) : 669.90€. Loyer de base : 556.80€. Complément de loyer : 0.00€. Montant estimé des dépenses annuelles d'énergie pour un usage standard entre 460.00€ et 650.00 € (montant estimé à partir des prix énergétiques de référence de l'année 2021). « Les informations sur les risques auxquels ce bien est exposé sont disponibles sur le site Géorisques : ». « Les honoraires locatifs seront revalorisés au 01/01/2026 conformément à l'arrêté du 17/07/2025 ».
Source
Logicimmo
Publié le
25 janvier 2026
Vue pour la dernière fois
Non disponible