




Pièces
3 pièces
Chambres
2 chambres
Surface
64 m²
Étage
3
Terrasse
Oui
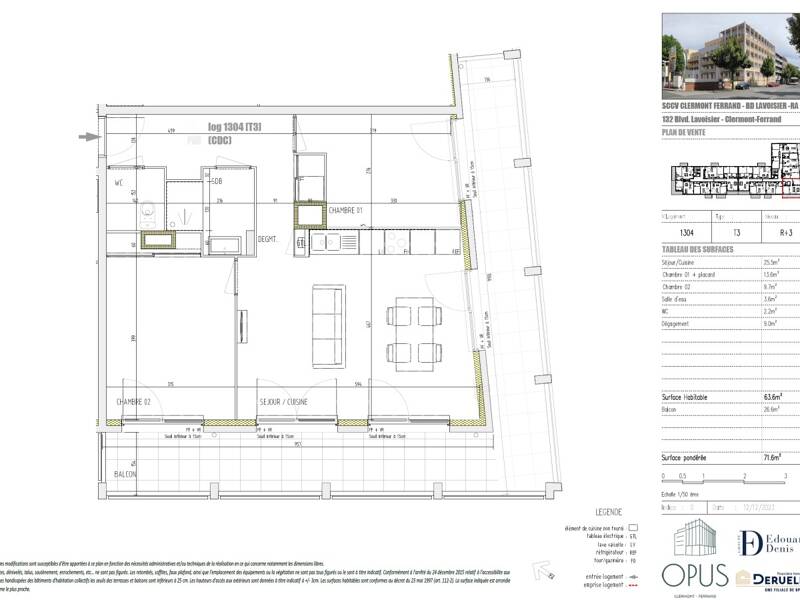
SANS HONORAIRES. Résidence neuve OPUS ! Belles opportunités à saisir ! 132 BOULEVARD LAVOISIER à CLERMONT. Notre programme vous propose cet appartement T3 au 3è étage. La livraison (et donc aménagement) se tiendra la deuxième quinzaine de Mars ! Découvrez les appartements non meublés de cette résidence. Le logement se compose d'un séjour / cuisine (aménagée) de 25.5m2 donnant accès à une superbe terrasse de 26.6m2. Ce dernier est exposé SUD EST / OUEST et vous permettra de profiter du soleil et de la vue sur le centre ville. La première chambre de 13.6 m2 donne également accès à l'extérieur et dispose d'un placard. La seconde mesure 9.7m2 et dispose également d'un accès terrasse. Une salle de douche et les WC séparés complètent le bien. Voir plan pour une meilleure visualisation. PS : photos non contractuelles, nous n'avons pas encore pris en photos tous les logements, cependant, les finitions présentées seront identiques L'appartement est doté du chauffage collectif. Il est à louer pour 817 euros CC, dont 176 euros de charges. Très proche centre-ville ! Il se situe à CLERMONT FERRAND (63000). Il y a des établissements scolaires de tous types à moins de 10 minutes à pied, tout comme une structure d'accueil pour les enfants en bas âge. Niveau transports, on trouve 11 lignes de bus ainsi que la ligne de tramway A (Gaillard) à proximité. Des autoroutes, la nationale N89 et l'aéroport Clermont-Ferrand sont accessibles à moins de 8 km. 3 cinémas vous accueillent dans les environs pour vos loisirs. Il y a également des restaurants, des commerces, des supermarchés, des boulangeries, des boucheries charcuteries et une supérette. A SAISIR RAPIDEMENT. SANS HONORAIRES. Référence à rappeler lors de nos échanges : B083 - 385591 Les informations sur les risques auxquels ce bien est exposé sont disponibles sur le site Géorisques : Logement Locatif Interm.
Source
Logicimmo
Publié le
26 janvier 2026
Vue pour la dernière fois
il y a 10 heures