




Pièces
2 pièces
Chambres
1 chambre
Surface
45 m²
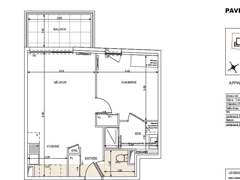
LE LAVANDOU, à proximité des commerces , petite résidence récente de standing Appartement Grand T2 de 45.87m² au 02ème étage avec ascenseur comprenant une entrée avec placard , un séjour avec cuisine Ouverte aménagée de 26.37m², une chambre de 12.75m² , une salle d'eau et un WC indépendant . Belle terrasse de 6.32 m² exposée Nord. Loué avec un stationnement privatif DISPONIBLE AU 26/02/2026 DISPOSITIF PINEL Loyer mensuel : 712.48 € + provision mensuelle de charges : 85€ Dépot de garantie : 712.48 € Honoraires charge locataire: Honoraires de visite, de constitution du dossier du locataire et de rédaction du bail : 8€ TTC/m² soit 458.70 € TTC + honoraires de réalisation de l'état des lieux d'entrée : 3 € TTC/m²soit 137.61€
Source
Logicimmo
Publié le
30 janvier 2026
Vue pour la dernière fois
il y a 3 jours