




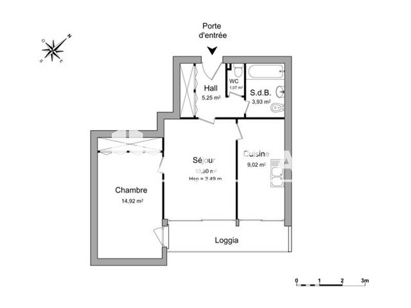
Pièces
2 pièces
Chambres
1 chambre
Surface
48 m²
Étage
8
Meublé
Oui
Balcon
Oui
A Proximité du Pars Montsouris, dans une résidence de standing, Foncia vous propose cet appartement meublé avec goût de 2 pièces avec balcon.parking et cave en sou-sol, Chauffage collectif. Lumineux, Charme, à voir rapidement. Assurance Multirisques Privilège *: 15.11 euros / mois *Services facultatifs, voir conditions en agences Les informations sur les risques auxquels ce bien est exposé sont disponibles sur le site Géorisques : georisques. gouv. fr
Source
Logicimmo
Publié le
31 janvier 2026
Vue pour la dernière fois
il y a 5 heures