




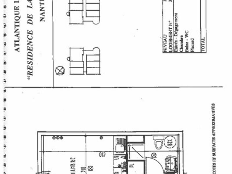
Pièces
1 pièce
Surface
18 m²
Étage
1
Agréable studio - 1er étage, côté rue - dans résidence calme, proche du campus de la Chantrerie (ICAM, école du bois, école vétérinaire, école des mines), garage fermé. Appartement composé d'une entrée, une pièce de vie avec Kitchenette équipée (évier, frigo, plaques de cuisson électriques), une salle d'eau avec WC, 1 placard-penderie. Ligne Chronobus C6 (arrêt St Joseph de Porterie) à 2 minutes à pied qui conduit aux écoles de la Chantrerie et au Centre ville. Pas de frais d'agence. Eau froide comprise dans les charges. Electricité, taxe des ordures ménagères et internet non inclus dans les charges Au Groupe CIF, il n'y pas de frais d'agence pour les locataires, nous vous demandons donc plus d'autonomie dans votre recherche. La première étape pour louer ce logement est de vérifier votre solvabilité. Pour cela, allez sur le site du Groupe CIF, puis sur la page du logement qui vous intéresse, enfin testez votre éligibilité via notre simulateur accessible via le bouton "Demande d'information". Si le simulateur indique que vous pourriez louer ce logement, appelez le numéro prioritaire (dédié à ceux qui ont complété le test, il apparaît à la fin de celui-ci) pour connaitre les modalités de visites. Sinon le simulateur vous invitera à rechercher une autre location adaptée à votre budget.
Source
Logicimmo
Publié le
2 février 2026
Vue pour la dernière fois
Non disponible