



Pièces
5 pièces
Chambres
4 chambres
Salles de bain
1
Surface
106 m²
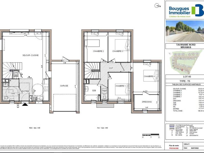
..POUR VISITER, DEPOSEZ DES A PRESENT VOTRE DOSSIER ET CLIQUER SUR CA M'INTÉRESSE.Le domaine Angele offre un cadre de vie familial privilégié dans un environnement pavillonnaire à proximité d'un espace boisé. Les villas en duplex disposent d'une cuisine aménagée, d'espaces de vie spacieux et de beaux jardins privatifs. Dans domaine , villa T5 avec garage fermé et jardin. Elle se compose au rdc d'un séjour/cuisine de 36.63m2 donnant accès au jardin, salle d'eau avec WC. A l'étage, 4 chambres, un dressing, une salle de bain et WC séparé. Un garage fermé.POUR VISITER, DEPOSEZ DES A PRESENT VOTRE DOSSIER ET CLIQUER SUR DEPOSER UNE CANDIDATURE. Loyer payable d'avance.Garantie Visale acceptée.Les informations sur les risques auxquels ce bien est exposé sont disponibles sur .
Source
Logicimmo
Publié le
2 février 2026
Vue pour la dernière fois
il y a 4 jours