




Pièces
1 pièce
Salles de bain
1
Surface
30 m²
Étage
1
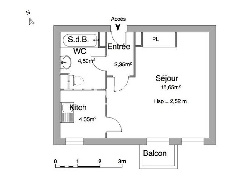
Location 100 % digitale ? sans visite physiqueProche des écoles et du centre-ville, dans une résidence sécurisée, découvrez ce studio situé au 1er étage, comprenant une entrée, une pièce principale, une cuisine aménagée et équipée, ainsi qu?une salle de bains.Une cave et un box complètent ce bien.Chauffage et eau chaude individuels électriques.Les photos, la visite virtuelle 360° et l?ensemble des informations sont disponibles en ligne.Aucune visite physique ne sera organisée.La sélection des candidats se fait uniquement sur dossier.Ce bien vous intéresse ? Déposez votre dossier sur notre plateforme sécurisée afin qu?il puisse être étudié. Assurance Multirisques Privilège *: 12.33 euros / mois *Services facultatifs, voir conditions en agences Les informations sur les risques auxquels ce bien est exposé sont disponibles sur le site Géorisques : georisques. gouv. fr
Source
Logicimmo
Publié le
3 février 2026
Vue pour la dernière fois
il y a 3 jours