




Pièces
2 pièces
Chambres
1 chambre
Surface
50 m²
Terrasse
Oui
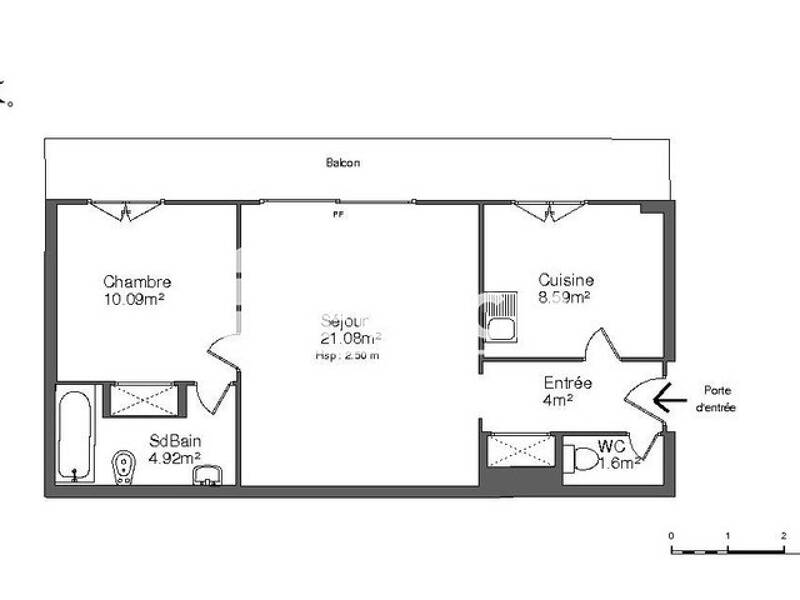
Bas Faron, 40 boulevard du faron, appartement 2 pièces au rez-de-chaussée.ses atouts : dans une résidence calme et sécurisée, appartement entièrement rénové, lumineux, grande terrasse accessible depuis toutes les pièces du logement. Il se compose d'une entrée avec placard, une cuisine indépendante, un séjour lumineux, d'une chambre avec placard, d'un salle d'eau et d'un WC indépendant. Une agréable terrasse d?environ 10 m², accessible depuis la cuisine, le séjour et la chambre,L'ensemble des baies vitrée est en commande et seront remplacées dans les prochaines semaines par des modèles en aluminium double vitrage.Une cave vient compléter ce bien. Assurance Multirisques Privilège *: 13.16 euros / mois *Services facultatifs, voir conditions en agences Les informations sur les risques auxquels ce bien est exposé sont disponibles sur le site Géorisques : georisques. gouv. fr
Source
Logicimmo
Publié le
3 février 2026
Vue pour la dernière fois
il y a 3 heures