




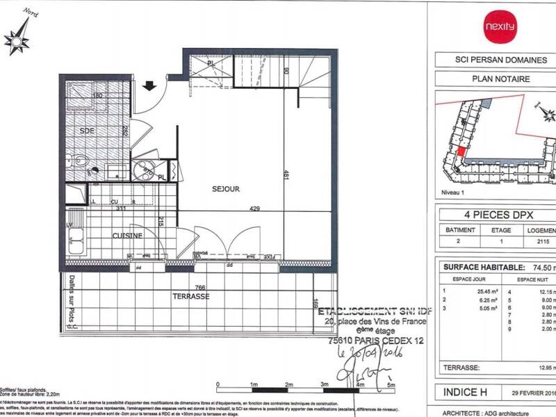
Pièces
4 pièces
Chambres
3 chambres
Salles de bain
1
Surface
74 m²
Étage
1
Terrasse
Oui
SANS HONORAIRES. Ce beau Duplex T4 dispose d'un grand séjour, une salle d'eau et une terrasse de 12m². A l'étage se trouvent trois chambres, une salle de bain et un WC séparé. Le logement est lumineux et agréable grâce à sa disposition en duplex. Parquet au sol et carrelage dans les pièces humides. Le chauffage est électrique et individuel. Le logement dispose d'une place de parking en sous-sol sécurisé. Photos non contractuelles. Référence à rappeler lors de nos échanges : A174 - 302519 Les informations sur les risques auxquels ce bien est exposé sont disponibles sur le site Géorisques : Logement Locatif Interm.
Source
Logicimmo
Publié le
3 février 2026
Vue pour la dernière fois
il y a 2 jours