



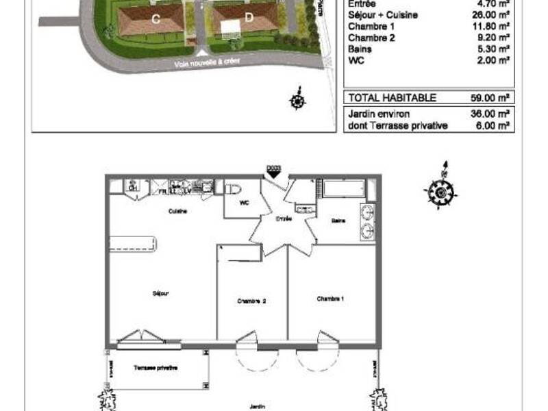
Pièces
3 pièces
Chambres
2 chambres
Salles de bain
1
Surface
59 m²
SAINT MEDARD EN JALLES - Dans résidence proche de toutes commodités. Appartement de type 3 composé de : entrée, séjour, cuisine américaine, deux chambres, salle de bain, wc. Jardinet privatif de 36m² environ avec terrasse, parking. Chaudière à condensation pour l'eau et le chauffage. Norme BBC. Montant estimé des dépenses annuelles d¿énergie pour un usage standard entre 580€ et 830 € (estimation réalisée à partir des prix énergétiques de référence de l¿année : 2021) « Les informations sur les risques auxquels ce bien est exposé sont disponibles sur le site Géorisques : ¿. POUR TOUTE DEMANDE DE VISITE, RDV SUR LE SITE PICHET / LOUER, AFIN DE DEPOSER VOTRE CANDIDATURE SUR LE BIEN DE VOTRE SELECTION. Les informations sur les risques auxquels ce bien est exposé sont disponibles sur le site Géorisques : georisques. gouv. fr
Source
Logicimmo
Publié le
3 février 2026
Vue pour la dernière fois
il y a 4 jours