




Pièces
3 pièces
Chambres
2 chambres
Salles de bain
1
Surface
59 m²
Terrasse
Oui
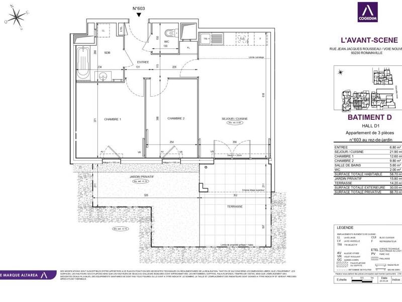
SANS HONORAIRES. T3 avec jardinet et terrasse. ROMAINVILLE – Rue Jean Jacques Rousseau. A proximité du métro ligne 5 arrêt Raymond Queneau accessible via le bus 145 en deux stations. Dans cette résidence moderne et sécurisée, soyez le premier locataire de ce charmant appartement de type T3 de 59 m2 situé en rez-de-jardin. Il comprend : entrée, pièce à vivre avec cuisine (meublée) ouverte de 22 m2, deux chambres de 9 et 12, salle de bains (baignoire) et WC séparés. Jardinet privatif de 16 m2 et terrasse de 14 m2. En sous-sol, une place de stationnement. Compris dans les charges : chauffage collectif, eau chaude/froide, entretien des parties communes, déchets ménagers et place de stationnement. PHOTOS NON CONTRACTUELLES Zone soumise à encadrement des loyers loyer de référence majoré : 1 062,00 euros loyer de base : 1 030,61 euros complément de loyer : 0,00 euros Référence à rappeler lors de nos échanges : 6978 - 361177 Les informations sur les risques auxquels ce bien est exposé sont disponibles sur le site Géorisques : LAC / Logement Abord.contract.
Source
Logicimmo
Publié le
4 février 2026
Vue pour la dernière fois
il y a 3 jours