




Pièces
3 pièces
Chambres
2 chambres
Surface
85 m²
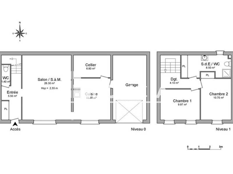
Dans une impasse au calme et proche centre, ville, maison exposée plein Sud comprenant au rez-de-chaussé :une entrée avec placards, un grand séjour, une cuisine aménagée, un cellier, un wc. Au 1er étage, deux chambres dont une avec placards, une salle d'eau avec un wc et placards. Un garage.Chauffage et eau chaude individuels gaz. N'hésitez plus et postulez Assurance Multirisques Privilège *: 21.77 euros / mois *Services facultatifs, voir conditions en agences Les informations sur les risques auxquels ce bien est exposé sont disponibles sur le site Géorisques : georisques. gouv. fr
Source
Logicimmo
Publié le
4 février 2026
Vue pour la dernière fois
il y a 4 jours