




Pièces
7 pièces
Chambres
4 chambres
Surface
165 m²
Étage
7
Terrasse
Oui
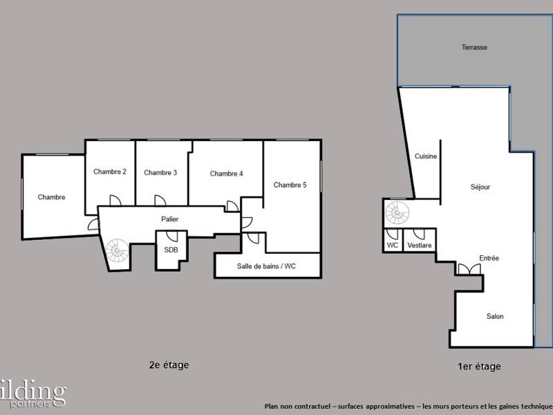
Situé au dernier étage d'un immeuble de standing, ce superbe appartement en duplex développe une surface de 165 m² et bénéficie d'une vaste terrasse de 110 m² offrant un cadre de vie privilégié. Au 6e étage, l'entrée dessert un bel espace de réception composé d'un salon lumineux, d'une salle à manger avec cuisine ouverte, l'ensemble donnant directement accès à la terrasse. Un espace TV vient compléter cet étage, ainsi qu'une buanderie et des toilettes invités. Au 7e étage, l'espace nuit se compose de quatre chambres, dont une installée dans une véranda ouverte sur la terrasse. Deux salles d'eau et deux toilettes assurent confort et fonctionnalité pour toute la famille. Un bien rare, alliant volumes généreux, luminosité et espaces extérieurs exceptionnels.
Source
Logicimmo
Publié le
4 février 2026
Vue pour la dernière fois
il y a 21 heures