




Pièces
7 pièces
Chambres
4 chambres
Surface
144 m²
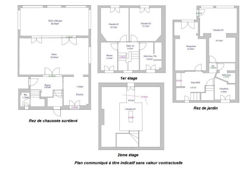
Située sur le bas de Chatou (8 min à pied du marché et du RER), maison ancienne rénovée lumineuse. Le rez-de-chaussée surélevé se compose d'une entrée avec toilettes, d'une cuisine semi-ouverte, d'un séjour de 25 m² ouvert sur une salle à manger de 19 m² avec vue sur le jardin. Le 1er étage dessert 2 chambres, un bureau avec rangement et une salle de douche avec WC. Belle chambre mansardée sous les toits avec espace de rangement. Le rez-de-jardin abrite une chambre de près de 20 m², bénéficiant d'un accès indépendant possible, avec une salle de douche avec WC. Chaufferie-buanderie, grand cellier et cave complètent ce rez-de-jardin aménagé. Proximité immédiate des écoles, des commerces et du RER pour cette maison à louer dans un quartier pavillonnaire recherché (Mairie). Possibilité de stationner sur le terrain.
Source
Logicimmo
Publié le
5 février 2026
Vue pour la dernière fois
il y a 4 jours