



Pièces
14 pièces
Chambres
6 chambres
Salles de bain
4
Surface
442 m²
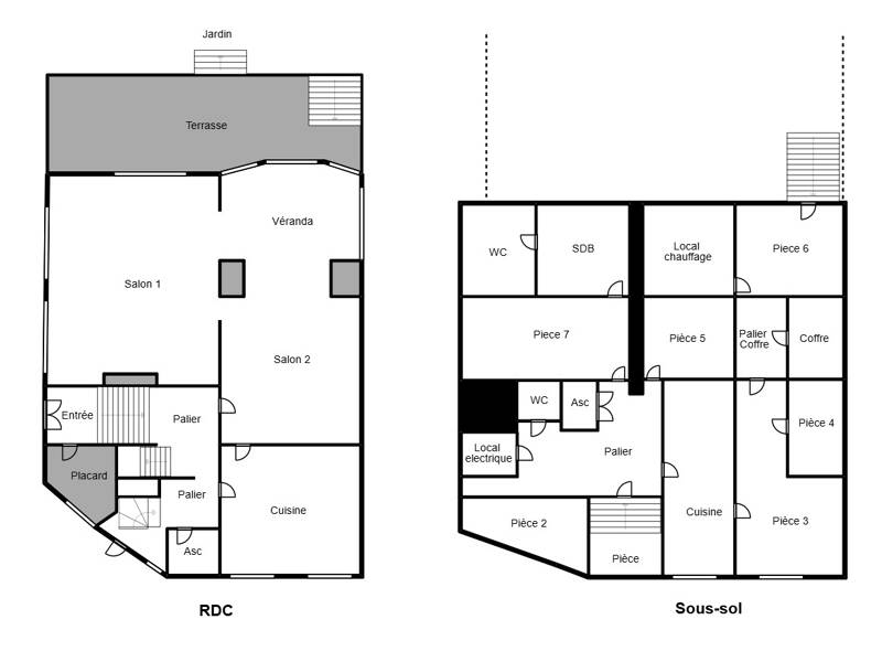
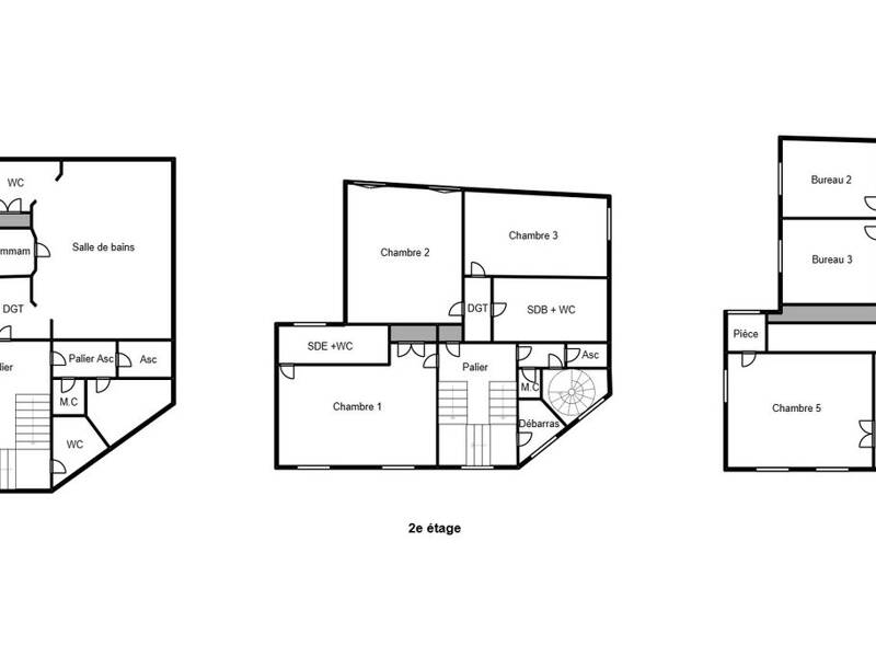
Passy - Hôtel particulier de 443 m² sur 3 niveaux avec ascenseur, et jardin arboré de 270 m² sans vis a vis Ce bien rare offre un cadre de vie élégant et modulable, idéal pour une résidence familiale, un projet d'hôtel. Rez-de-chaussée : Un hall d'entrée accueillant, un double séjour avec cheminée, une salle à manger sous verrière et ainsi qu'une grande cuisine dinatoire. 1er étage : Une suite parentale avec dressing, salle de bain et hammam. Ainsi qu'un bureau. 2e étage : Trois chambres confortables, une salle d'eau avec WC et une salle de bain avec WC. 3e étage : Quatre chambres, un bureau, un dressing, une salle d'eau avec WC et une salle de bain avec WC. En sous-sol : D'une superficie de 90 m², il comprend de nombreux espaces de rangement, une buanderie, une cave à vin, des espaces techniques. Atouts supplémentaires : Possibilité de faire un toit terrasse avec vue spectaculaire sur la Tour Eiffel Ascenseur privatif desservant tous les étages Climatisé Des travaux de rénovation sont à prévoir.
Source
Logicimmo
Publié le
5 février 2026
Vue pour la dernière fois
il y a 6 heures